- Käuferschutz
- Fachberatung
- kostenloser Versand ab 99€ in DE
- Geld-Zurück-Garantie
- Top bewertet
- mit Live-Ausstellung
Haben Sie Fragen? Wir beraten Sie gerne ausführlich am Telefon.
Sie erreichen uns Mo. - Fr. 09 - 18.00 Uhr.
Fragen? zum Service-Center
- Artikelnummer: 803030
- GTIN: 803030
- Kategorie: Kamineinsatz Scheitholz
-
Hersteller:
Holzkamin Einsatz Edilkamin WINDO2 75 L - 13,2 kW - Fenster Rechts
Edilkamin
50 Jahre Erfahrung und die Fähigkeit zu wegweisender Planung, haben dem Unternehmen die Wertschätzung anspruchsvoller Kunden eingebracht, die nach stilistisch innovativen Produkten suchen. Edilkamin legt seit jeher großen Wert auf Forschung, technologische Entwicklung und immer bessere Produktqualität. Die Produkte von Edilkamin zeichen sich zudem durch Sparsamkeit, Effizienz und daher durch kostengünstiges Heizen aus. Die Verbindung von Tradition und moderner Technologie macht den italienischen Hersteller zu einem führenden Unternehmen in seinem Sektor.
WINDO2
Dieser eindrucksvolle Kamineinsatz eignet sich hervorragend für die Renovierung alter, offener Kamine oder für den Bau eines neuen Kamins.
Der WINDO2 ist ein Kamineinsatz der mit seiner spektakulären Eck-Verglasung einen eindrucksvollen Blick auf die Flammen im Innenraum erlaubt. Die Schiebetür im Eck Design wird durch die integrierte Glass Spülung sauber gehalten. Der Brennraum ist aus Vermiculit gefertigt.
Optional für den WINDO2 ist das AIR DIFFUSER KIT für die Kanalisierung der Warmluft verfügbar. Der WINDO2 ist sowohl mit natürlicher Konvektion als auch mit Gebläselüftung zu betreiben.
Das besondere am WINDO2 ist, dass die Glastür sowohl nach oben geschoben als auch zur Seite geöffnet werden kann, dies erleichtert die Reinigung enorm.
S.C.P - Die Revolution in der Verbrennungstechnik

Ein innovatives, vorteilhaftes Verbrennungssystem, das für sauberere Abgase und eine größere Wärmeausbeute sorgt. Nach der Primärverbrennung wird die Luft zur Nachverbrennung in den Feuerraum eingeleitet, um Schadstoffe abzubauen und weitere Wärme zurückzugewinnen.
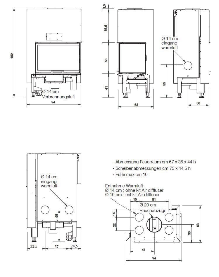
Technische Daten
- Nutzleistung kW 13,2
- Wirkungsgrad % 84,6
- Brennstoffverbrauch kg/h 3,3
- Beheizbares Vol. m³ 345
- Ø Abgasleitung 20 cm
- Ø Zuluftleitung 14 cm
- Rauchabzug oben
- Gewicht 336 kg
Maßangaben
Kamineinsatz
- Höhe 1500 mm
- Breite 940 mm
- Tiefe 630 mm
Feueröffnung
- Höhe 440 mm
- Breite 670 mm
- Tiefe 360 mm
Zertifizierungen
- BImSchV 1. und 2. Stufe
- CE Zeichen
- EN 13229
- Österreich 15a B- VG
- Schweiz nach VK
| Nennwärmeleistung: | 13 kW |
| Ø Rauchrohr: | Ø 200 mm |
| Artikelgewicht: | 336,00 kg |
| Verbrennungszuluft (optional): | ohne Zuluftanschluss (raumluftabhängig) |
| Mehrfachbelegung geeignet: | Ja |
| Energieeffizienz A++ bis G: |
|
| Kanalisierbar: | Ja |
| Betriebsanleitung (PDF) |
| Technisches Datenblatt (PDF) |
| Leistungserklärung (PDF) |
| Maßskizze (PDF) |
| Energielabel (PDF) |
| Produktdatenblatt (PDF) |
|
Edilkamin S.p.A. |